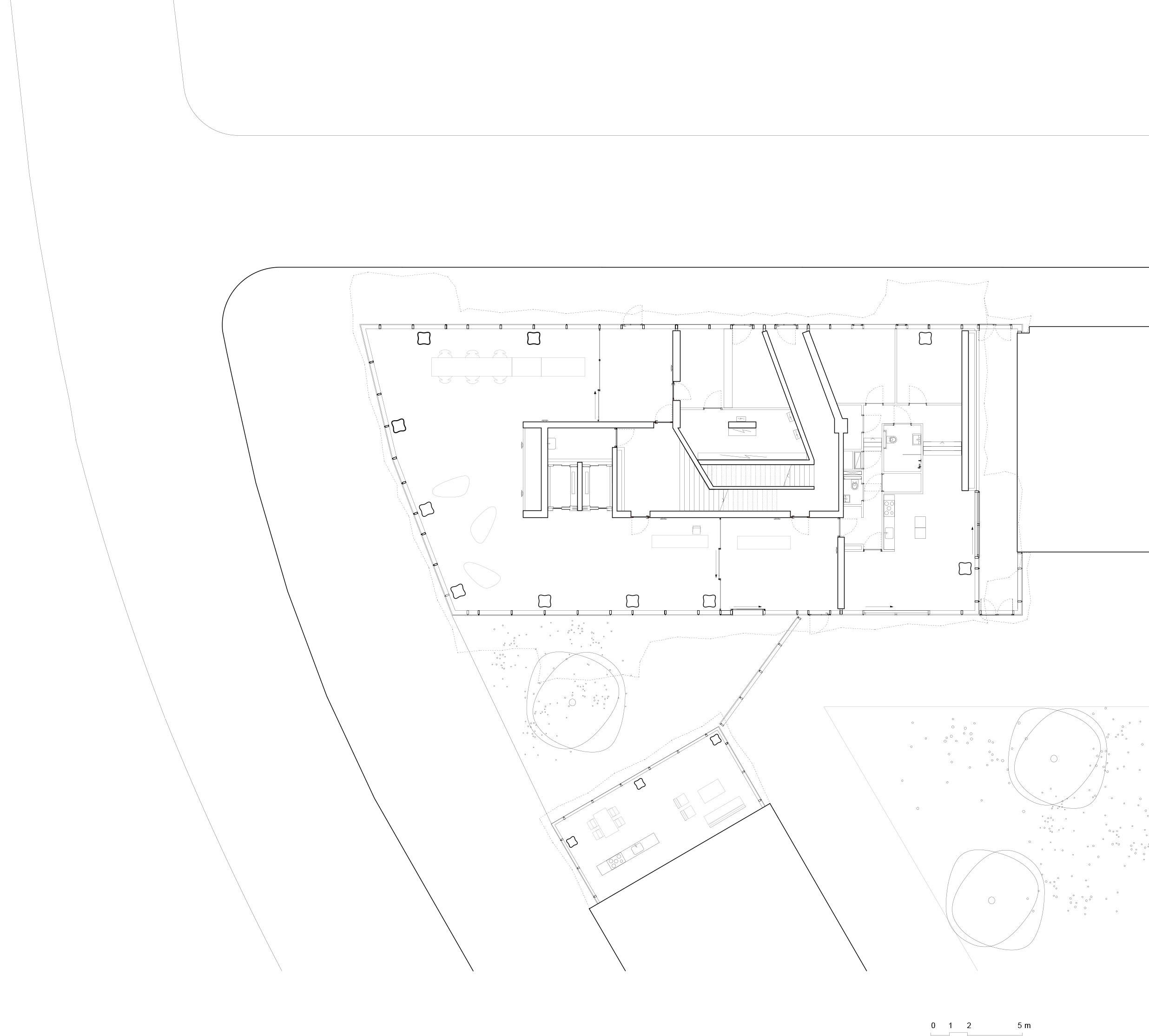
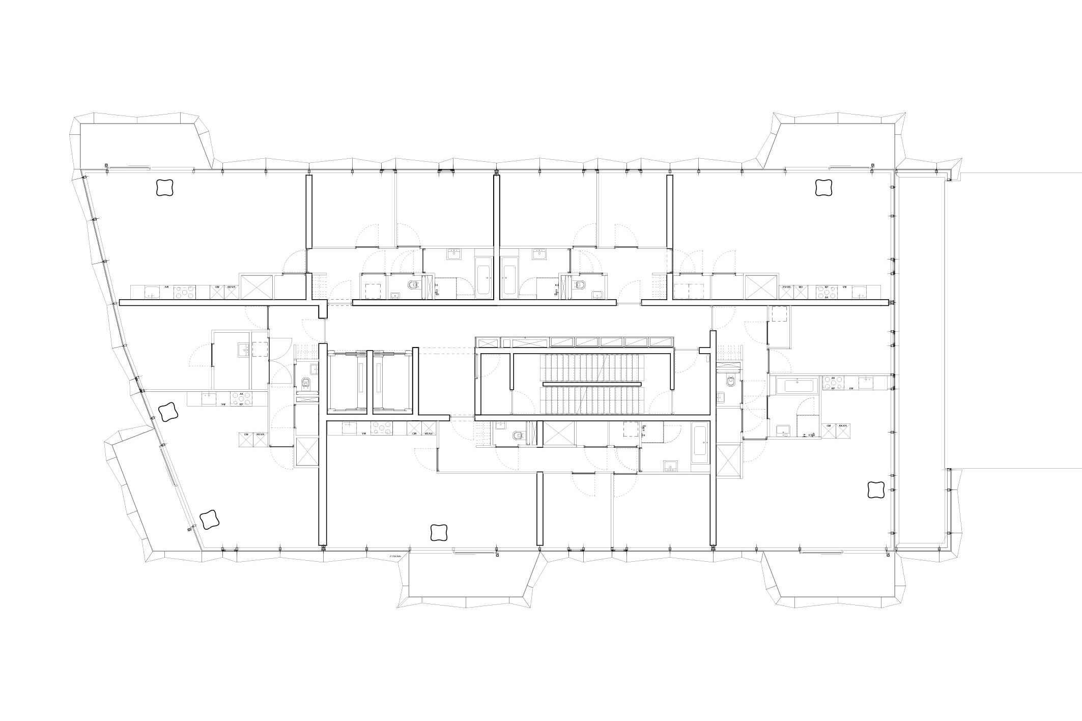
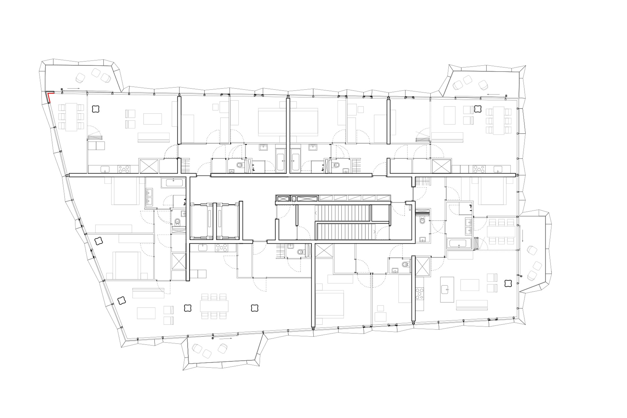
De E’tower bevindt zich in een voormalig industriegebied dat is herontwikkeld tot een nieuwe woonwijk genaamd Strijp S, in Eindhoven. De toren van 22 verdiepingen met 110 appartementen vormt de toegang tot de wijk Stadionkwartier. De appartementen zijn georganiseerd rond een zeer efficiënte kern in het midden van de voetafdruk van de torens. De appartementen variëren in grootte van 65 m² tot 110 m² en dankzij de glazen gevels van vloer tot plafond maken de royale uitzichten over de stad deel uit van het interieur van de appartementen.
Zo ontstaat een visueel groter appartement door lucht, licht en ruimte van buitenaf binnen te laten. Elk appartement in de E’ Tower heeft een balkon dat dient als verlengstuk van de woonkamer. Aangrenzend aan de woonkamer en het balkon is een extra glazen ruimte die dienst doet als wintertuin, extra slaapkamer of studeerkamer.
In de royale lobby is ruimte voor een leestafel, kluisjes voor pakketdiensten en een huismeester. Op de begane grond is de glazen gevel voorzien van stippen die van een afstand de illusie wekken van gordijnen. Tussen de toren en een gebouw van vijf verdiepingen dat de gevel weerspiegelt, biedt een glazen poort toegang tot de privé-binnenplaats van het bouwblok.
De constructie bestaat uit in-het-werk-gestorte betonnen kolommen en wanden op de begane grond en de eerste verdieping en geprefabriceerde betonnen kolommen en wanden op de overige verdiepingen. De gevel heeft geometrisch gevormde aluminium elementen ter hoogte van de vloerrand, die door hun vorm visueel een dynamische beweging creëren. De vormkolommen dragen bij aan een dynamisch gevoel van ruimte binnenin het interieur.
Locatie: Mathildelaan 85, Eindhoven
Programma: woningbouw
Omvang: 16.000 m2
Ontwerp: 2004-2006
Oplevering: 2013
Project team: Wiel Arets, Bettina Kraus, Freyke Hartemink, Daniel Meyer, Mai Henriksen, Jacques van Eyck
Opdrachtgever: Stadionkwartier BV, Laurentius-Amvest
Adviseurs: Nelissen BV, Tielemans BV, LBP/Brandveiligheid Erik Janse, SchreuderGroep BV, Scheldebouw BV, DHV BV
Freyke Hartemink droeg aan dit project bij als project architect bij Wiel Arets Architects vanaf schetsontwerp tot en met oplevering.










